Dự án nhà phố biệt thự Senturia An Phú Quận 2 là dự án do Công ty Tiến Phước phát triển tại trung tâm Phường An Phú, TP Thủ Đức ( nay là Phường Bình Trưng, TP.HCM) tọa lạc trong quy hoạch phát triển cụm thể thao Rạch Chiếc hàng đầu Đông Nam Á. Senturia An Phú là khu Compound với Quy mô 8,6ha gồm 335 căn nhà phố, biệt thự và Shophouse cao cấp bậc nhất.
✅ Mở bán Nhà phố, biệt thự và shophouse số lượng giới hạn.
✅ Chính sách thanh toán chỉ từ: 10% Kí HĐMB và 15% nhận nhà
✅ Chọn căn trực tiếp từ chủ đầu tư.

Phối cảnh tổng thể dự án Senturia An Phu Quận 2
Senturia An Phú sở hữu vị trí đắc địa tại mặt tiền đường Song hành đường cao tốc TPHCM- Long Thành. Nơi đây được ví như trái tim của khu Đông Sài Gòn, nơi giao thoa giữa sự sôi động, náo nhiệt của trung tâm thành phố và nhịp sống hiện đại, năng động của khu vực mới phát triển.

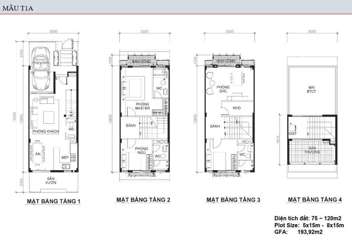
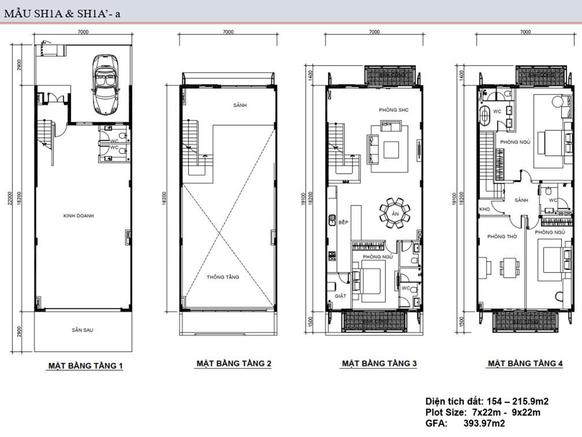
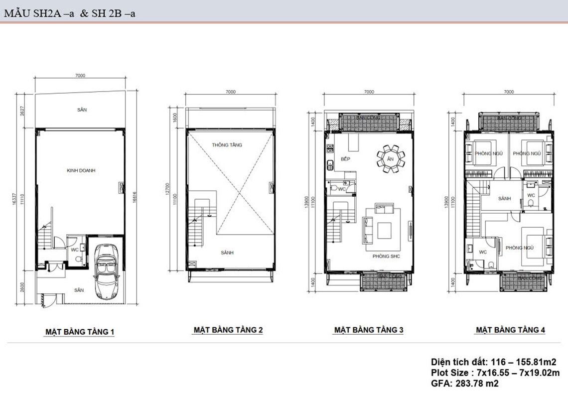
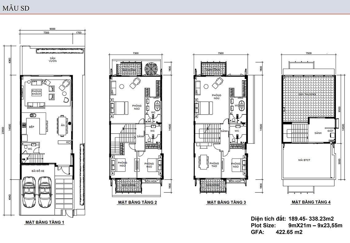
Mặt bằng dự án Senturia An Phú được chú trọng thiết kế theo phong cách hiện đại, sang trọng, kết hợp hài hòa với cảnh quan thiên nhiên. Các căn hộ được thiết kế thông minh, tối ưu hóa diện tích sử dụng, mang đến cho cư dân không gian sống tiện nghi và thoải mái.

Mặt bằng tổng thể Senturia An Phu Tien Phuoc


Senturia An Phú không chỉ nổi bật bởi vị trí vàng mà còn thu hút cư dân bởi hệ thống tiện ích nội khu đa dạng, đẳng cấp và phong phú, đáp ứng mọi nhu cầu sinh hoạt, vui chơi giải trí của cư dân thuộc mọi lứa tuổi. Tiện ích tại Senturia An Phú được thiết kế theo tiêu chuẩn quốc tế, mang đến cho cư dân trải nghiệm sống thượng lưu, tiện nghi và trọn vẹn.

Khu nhà phố và biệt thự compound hạng sang do tập đoàn Tiến Phước phát triển tại Quận 2 mang trên Senturia An Phú sẽ dự kiến công bố vào tháng 12/2025 với mức giá vô cùng hợp lý cho phân khúc nhà ở cao cấp được quy hoạch phát triển chỉn chu cả về “Lượng & Chất”:
Đơn giá: ~ VND 350,000,000/m2
☎ Hotline 24/7 : 0916.592.969
☎ Hotline : 0916.592.969 ( 24/7)